+++ Berichte über die Bauruine unter: allesfakten.de +++

Der Bauunternehmer plant Büroräume liefert aber nur Kellerräume.

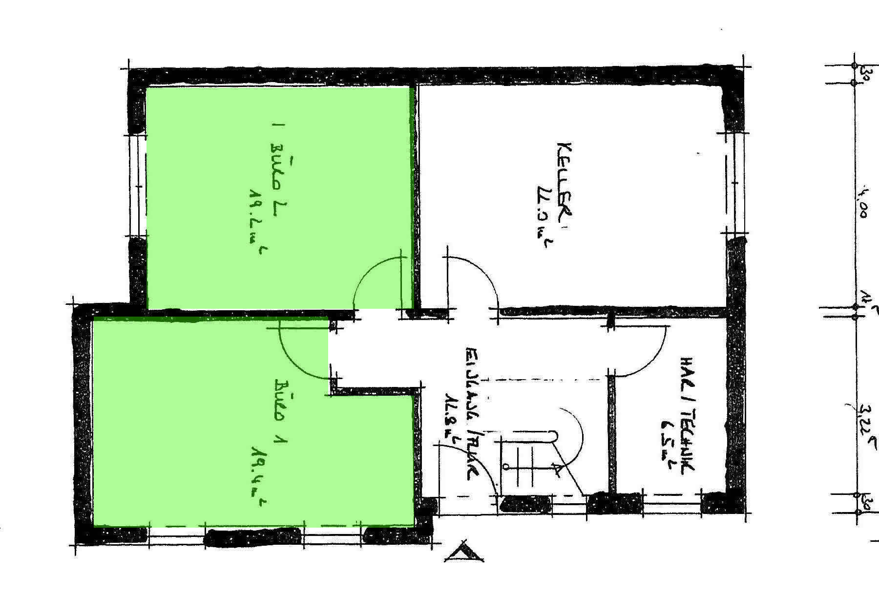
Zum Verständnis: Herr Rebmann ist selbständiger Unternehmer und benötigt für sich und seine/n zukünftige/n Beschäftigte/n Büroräume. Im Vertrag wurde an mehreren Stellen festgehalten, dass im Untergeschoss 2 (zwei) Büros geplant und demnach zu errichten waren:

Plan zum Untergeschoss: Pan zum UG aus dem Vertrag vom 17.06.2010
Heizungsinstallation im Büro 1 und Büro 2: Heizungsinstallation Büro 1 und Büro 2 - Vertrag vom 17.06.2010 - Seite 10
Estrich im Büro 1 und Büro 2: Estrich im Büro 1 und Büro 2 - Vertrag vom 17.06.2010 - Seite 11
Elektroinstallation im Büro 1 und Büro 2: Elektroinstallation im Büro 1 und Büro 2 - Vertrag vom 17.06.2010 - Seite 13
Gesamtwohnfläche des Gebäudes: Gesamtwohnfläche - Vertrag vom 17.06.2010 - Seite 22

Die Arbeitsstättenverordnung hätte eingehalten werden müssen, durch eine Rückantwort-Mail des Landesamt für Umwelt- und Arbeitsschutz vom 26.07.2018 belegt LUA bestätigt Anwendung der Arbeitsstättenverordnung

Fakten

Laut Vertrag sind zwei Büros im Untergeschoss vereinbart. Der Bauherr, Herr Rebmann, ist selbständiger Unternehmer und ist auf die Büros angewiesen, da er auch Arbeitskräfte einstellen muss. Die Büros sind in dem Falle Arbeitsstätten. Beim Errichten und Betreiben von Arbeitsstätten ist die Arbeitsstättenverordnung im vollen Umfang zu berücksichtigen.

Die Büroräume haben zu kleine Fensterflächen und die Räumlichkeiten sind zu niedrig.

Wichtige Termine(Die Auflistung ist nicht vollständig und wird ergänzt.)